物件概要
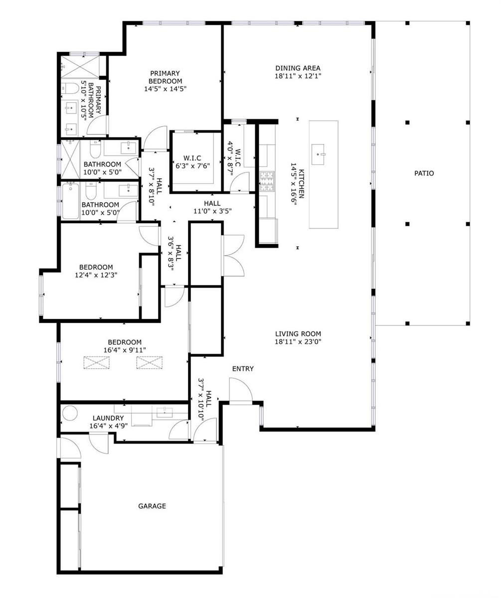
ワイアラエ・イキVのプライベート/ゲート付きコミュニティ内に位置する、美しく全面改装された平屋建てのレジデンス。現代的なエレガンスとアイランドライフが見事に融合しています。広々としたベッドルーム3室とフルバスルーム3室を備えたこの住宅は、ラグジュアリー、機能性、そして快適さがシームレスに融合しています。中に入ると、高い天井と、開放的なリビングスペース全体に流れるような上質な木製フローリングが目を惹きます。すべてのバスルームは、洗練された磁器タイル、TOTO製トイレ、フレームレスのガラス張りシャワーを備え、まるでスパのような空間を演出しています。住宅の中心には、高級天然木仕上げのキャビネット、印象的な滝のようなアイランドキッチン、そして最新の高級家電を備えたデザイナーキッチンがあります。戦略的に配置された天窓と、スタイリッシュで耐久性に優れた高品質のアルミ屋根材により、豊かな自然光をお楽しみください。家は、広々とした芝生、屋根付きのベランダ、広々としたオープンデッキを備えたトロピカルな造園に囲まれており、屋内と屋外の生活や娯楽に最適です。
※自動翻訳のため表現が適切でない場合がございます。
(原文)
Nestled within the private/gated community of Waialae Iki V, this beautifully fully renovated single-level residence blends contemporary elegance with island living. Featuring three spacious bedrooms and three full bathrooms, this home offers a seamless blend of luxury, functionality, and comfort. Step inside to discover soaring ceilings and rich wood flooring that flows effortlessly throughout the open-concept living spaces. All bathrooms are finished with sleek porcelain tiles, Toto toilets, and frameless glass-enclosed showers, creating a spa-like experience in every suite. At the heart of the home is the designer kitchen outfitted with high-end, natural wood-faced cabinetry, a striking waterfall-style island, and brand-new luxury appliances. Enjoy an abundance of natural light thanks to strategically placed skylights and quality aluminum roof shingles that add both style and durability. The home is surrounded by tropical landscaping with an open lawn, covered lanai, and an expansive open deck—perfect for indoor-outdoor living and entertaining.


