物件概要
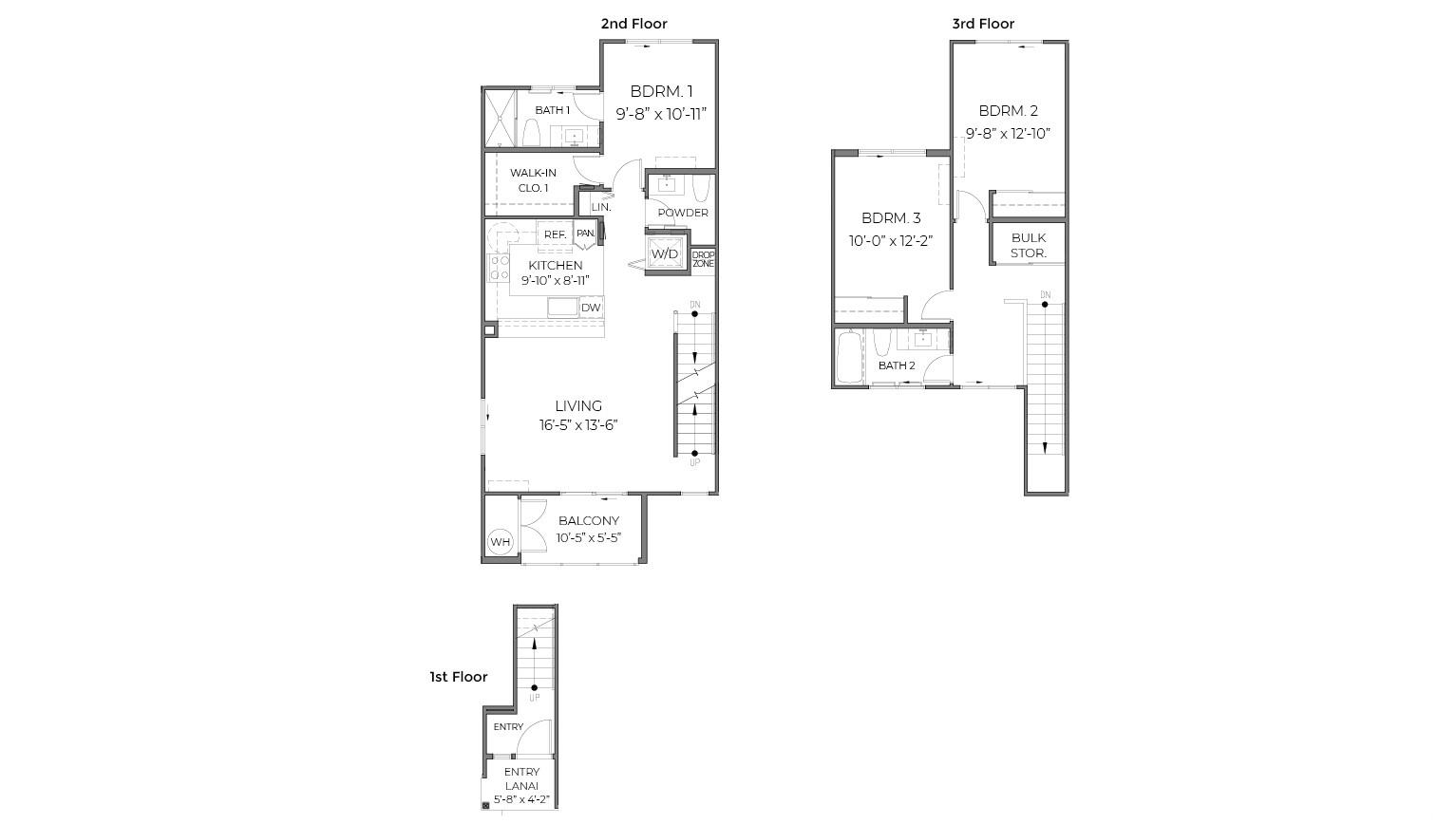
3階建て、ベッドルーム3室、バスルーム2.5室のコンドミニアムで、総居住面積は1,317平方フィートです。館内に入ると、リビングルームとペニンシュラキッチンへと続く階段が目に入ります。キッチンにはステンレス製の電化製品と白いソフトクローズキャビネットが備え付けられています。近くには便利なパウダールームもあります。2階には、ウォークインクローゼットと洗面台とウォークインシャワー付きの専用バスルームを備えた主寝室があります。リビングルームに続くバルコニーで、新鮮な空気を吸いながらリラックスしてください。3階には、鏡付きのスライドドアクローゼットを備えた2つの寝室と、バスタブとシャワーが一体となったバスルームを備えたオープンコンセプトのファミリールームがあります。スプリットエアコンと、レンジ/オーブン、電子レンジ、食器洗い機、冷蔵庫、洗濯機/乾燥機などの最新の電化製品が快適な暮らしを実現します。
※自動翻訳のため表現が適切でない場合がございます。
(原文)
These three stories 3 bedroom and 2.5-bathroom condominium consist of 1,317 square feet of net living area. When you step into this home, you will be greeted by a staircase that leads you into the living room and peninsula kitchen featuring stainless steel appliances and white soft-close cabinets. Nearby is a convenient powder room. On the second floor, you'll find the primary bedroom with a walk-in closet and ensuite bathroom with a vanity sink and walk-in shower. Relax and take in the fresh air on the balcony off the living room. The third-floor features two secondary bedrooms each with mirrored sliding door closets and a secondary bathroom with a combination bathtub and shower adjacent to an open concept family room. Split air conditioning and modern appliances including a range/oven, micro-hood, dishwasher, refrigerator, and washer/dryer allow for ease of living.


