物件概要
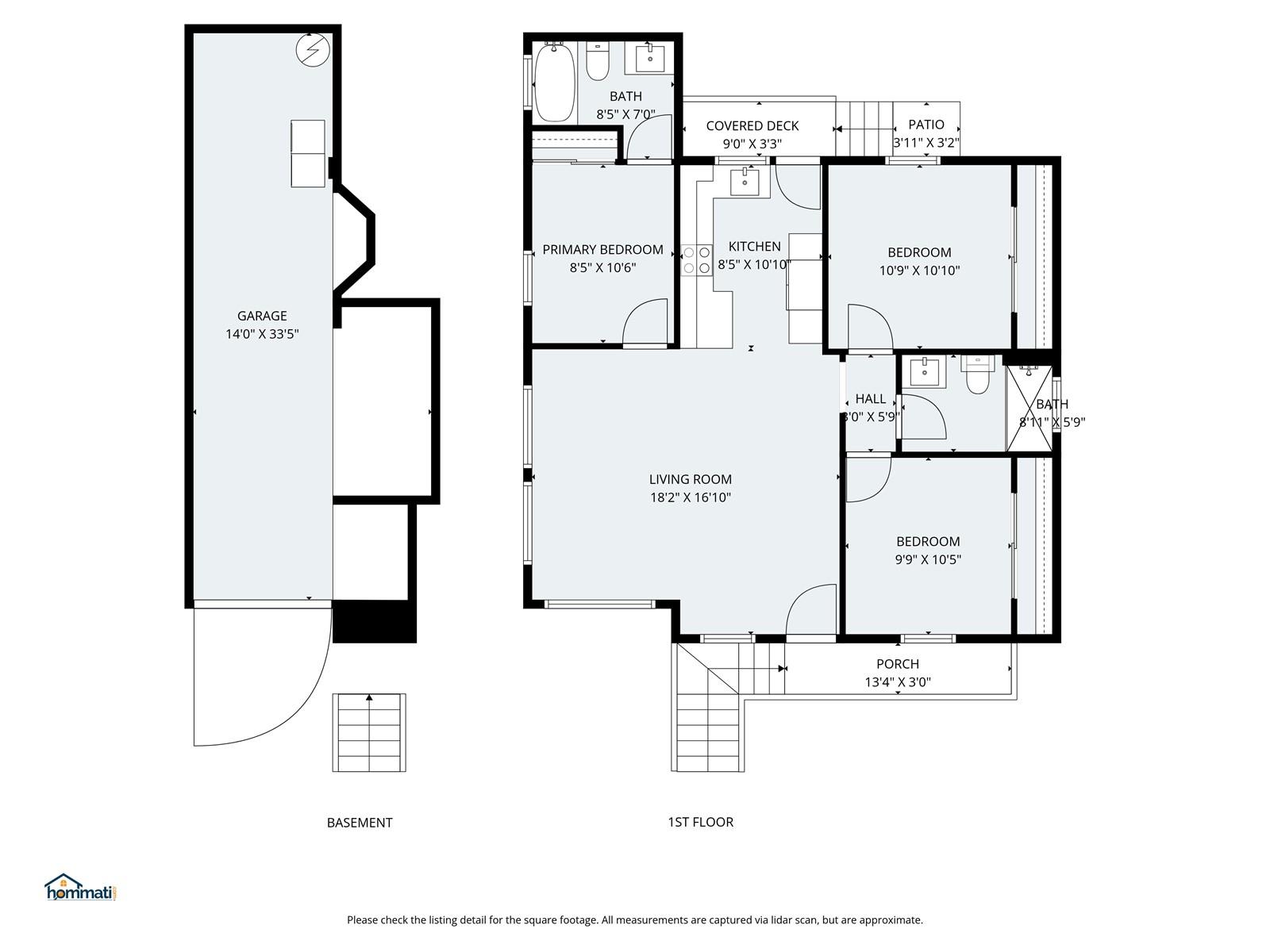
高層マンションでの生活や高額な管理費に甘んじるのはもうやめましょう。ホノルルの中心部にある、あなたが待ち望んでいた独立型一戸建て住宅のライフスタイルがここにあります。今なら、入居を促すためのさらに積極的なインセンティブをご用意しています。売主はこの家を売ることに尽力しています。価格を大幅に値下げし、あと90日間しか市場に出ません!融資ボーナス:提携ローン会社が、最初の1年間の金利引き下げ(最初の1年間は1ポイント)を無料で提供し、住宅所有者としての最初の1年をさらに快適にします!この物件には、中型SUVが楽に収まる専用駐車場に加え、2台目の車を駐車できる私道スペースがあります!路上駐車を探したり、毎月のガレージ料金を支払ったりする必要はもうありません!完全な住宅検査はリクエストに応じて提供され、完全に安心して購入できます。ペット、コーヒー、バーベキューに最適な、プライベートなフェンス付きの庭。これはコンドミニアムでは提供できないものです。最高のロケーション:クイーンズ・メディカルセンターまで5分、ダウンタウンまで15分、チャイナタウンのレストラン街、ハワイ大学マオナキャンパス、アラモアナショッピングエリアへもすぐアクセスできます。これは単なる家ではなく、都会の中にありながら、あなただけの特別な空間となるでしょう。今すぐ不動産エージェントにご連絡いただき、物件検査結果を確認し、金利引き下げの手続きを済ませましょう!
※自動翻訳のため表現が適切でない場合がございます。
(原文)
Stop settling for high-rise living & high HOA fees. This is the detached, single-family lifestyle in the heart of Honolulu you’ve been waiting for—now with even more aggressive incentives to get you moved in. The Sellers are committed to selling this home. We’ve just slashed the price and is will only be on the market for 90 more days! FINANCING BONUS: Our preferred lender is offering a FREE 1-YEAR TEMPORARY RATE BUY-DOWN (1 point for the first year) to make your initial first year as a homeowner even better! This property features a private parking structure that easily fits a mid-size SUV, in addition to driveway space to park a SECOND VEHICLE! No more searching for street parking or paying monthly garage fees! A FULL HOME INSPECTION is available upon request, so you can buy with total confidence. A private, fenced yard for pets, coffee, or BBQs—something no condo can offer. UNBEATABLE LOCATION: 5 mins to Queen’s Medical Center, 15 mins to Downtown, and quick access to Chinatown dining, UH Maona campus & Ala Moana shopping. This isn't just a house; it's a detached sanctuary in the city on your terms. Call your Realtor today to review the inspection and lock in your rate buy-down!



藤澤太郎ハワイ不動産