物件概要
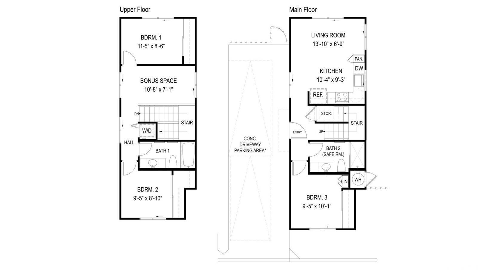
この2階建て、3ベッドルーム、2バスルームの独立型一戸建て住宅は、997平方フィートの正味居住エリアと完全にフェンスで囲まれたプライベートな裏庭エリアで構成されています。この家に入ると、ステンレス製の電化製品と白いソフトクローズキャビネットを備えたキッチンが迎えてくれます。キッチンはリビングルームとシームレスにつながっており、ゲストをもてなしたり、忙しい一日の後にリラックスしたりするのに最適です。また、この階にはウォークインシャワーと洗面台を備えた主寝室があります。2階には、ホームオフィス、ゲームルーム、またはプレイエリアに最適なボーナスルームがあります。さらに、この階には2つの二次寝室とシャワーとバスタブが一体となったバスルームがあり、家を完成させます。全館スプリットエアコンと、レンジ/オーブン、電子レンジ、レンジフード、食器洗い機、冷蔵庫、洗濯機/乾燥機などの最新の電化製品が快適な生活を実現します。この家の完成予定は2026年7月です。
※自動翻訳のため表現が適切でない場合がございます。
(原文)
This two story 3-bedroom 2-bathroom detached single family home consists of 997 square feet of net living area and a fully fenced private back yard area. When you step into this home, you will be greeted by the kitchen featuring stainless steel appliances and white soft-close cabinets. The kitchen flows seamlessly into the living room, perfect for entertaining guests or relaxing after a busy day. Also on this floor is a primary bedroom with a walk-in shower and vanity. Upstairs, you will find a bonus room, perfect for a home office, game room, or play area. Also on this floor are two secondary bedrooms and a bathroom with a shower-tub combination to help complete the home. Whole house split air conditioning and modern appliances including a range/oven, micro-hood, dishwasher, refrigerator, and washer/dryer allow for ease of living. Estimated completion of this home is July 2026.


