物件概要
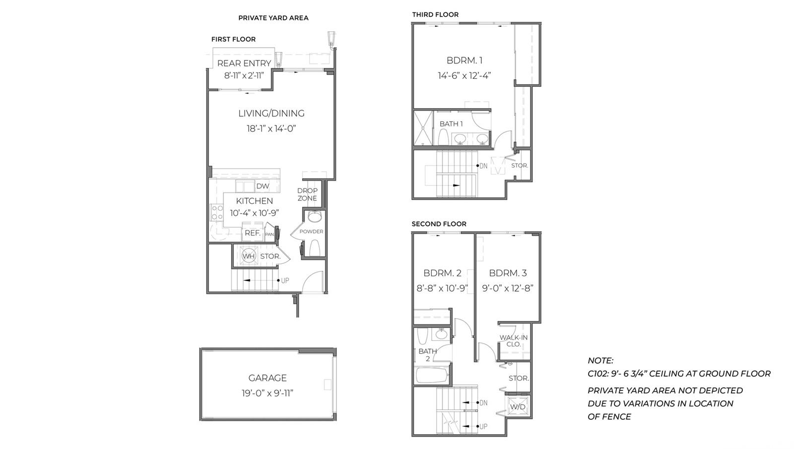
3階建て、ベッドルーム3室、バスルーム2.5室のコンドミニアムは、1,401平方フィート(正味)のリビングエリアと専用の庭を備えています。室内に入ると、ステンレス製の家電と白いキャビネットを備えたキッチンが目に入ります。キッチンはダイニングルームとリビングルームにシームレスにつながっています。2階には2つのセカンドベッドルームと、バスタブとシャワーが一体となったバスルームがあります。3階には、広々としたクローゼットを備えたメインベッドルームと、ダブルシンクの洗面台とウォークインシャワーを備えた専用バスルームがあります。全館スプリットエアコンに加え、レンジ/オーブン、電子レンジ、レンジフード、食器洗い機、冷蔵庫、洗濯機/乾燥機などの最新家電が快適な暮らしをサポートします。
※自動翻訳のため表現が適切でない場合がございます。
(原文)
These three stories 3 bedroom and 2.5-bathroom condominium consists of 1,401 square feet (net) of living area and your own private yard area. When you step into this home, you will be greeted by the kitchen featuring stainless steel appliances and white cabinets. The kitchen flows seamlessly into the dining and living room. The second level features two secondary bedrooms and a bathroom with a combination bathtub and shower. On the third floor, you'll find the primary bedroom with spacious closets and ensuite bathroom with a double vanity and walk-in shower. Whole house split air conditioning and modern appliances including a range/oven, micro-hood, dishwasher, refrigerator, and washer/dryer allow for ease of living.


