物件概要
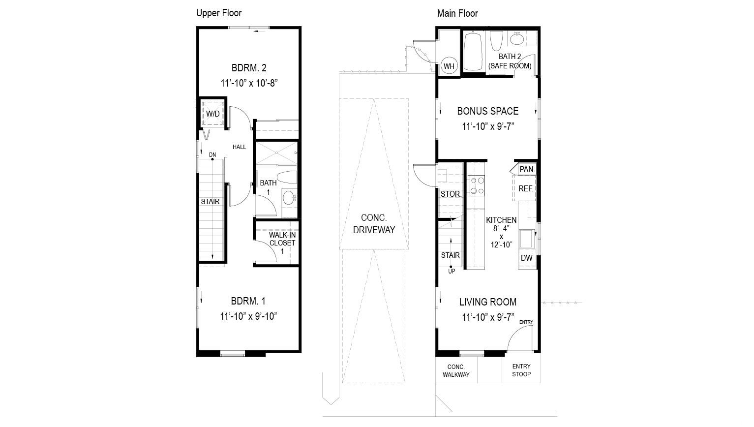
この2階建て、2ベッドルーム、2バスルームの独立型一戸建て住宅は、居住面積880平方フィート、完全にフェンスで囲まれたプライベートな裏庭を備えています。家に入ると、リビングルームが迎えてくれ、そこからキッチンへとシームレスにつながっています。キッチンには、バーカウンター、ステンレス製の家電製品、白いソフトクローズキャビネットが備わっています。1階には、シャワー付きバスタブを備えたフルバスルームと、ホームオフィス、ラウンジ、ゲームルームなど、用途が無限に広がるボーナススペースもあります。2階には、セカンドベッドルームと、ウォークインクローゼットと洗面台、ウォークインシャワー付きの専用バスルームを備えたメインベッドルームがあります。家全体に設置されたスプリットエアコンと、レンジ/オーブン、電子レンジ付き換気扇、食器洗い機、冷蔵庫、洗濯乾燥機などの最新家電製品により、快適な生活を送ることができます。
※自動翻訳のため表現が適切でない場合がございます。
(原文)
This two story 2-bedroom 2-bathroom detached single family home consists of 880 square feet of net living area and a fully fenced private back yard area. When you step into this home, you will be greeted by the living room that leads seamlessly into the kitchen featuring a bar height seating area, stainless steel appliances, and white soft-close cabinets. The first floor also features a full bathroom with a shower-tub combination and a bonus space that’s perfect for a home office, lounge room, or game room—the possibilities are endless. The second level features the secondary bedroom and primary bedroom with a walk-in closet and ensuite bathroom with a vanity sink and walk-in shower. Whole house split air conditioning and modern appliances including a range/oven, micro-hood, dishwasher, refrigerator, and washer/dryer allow for ease of living.


