物件概要
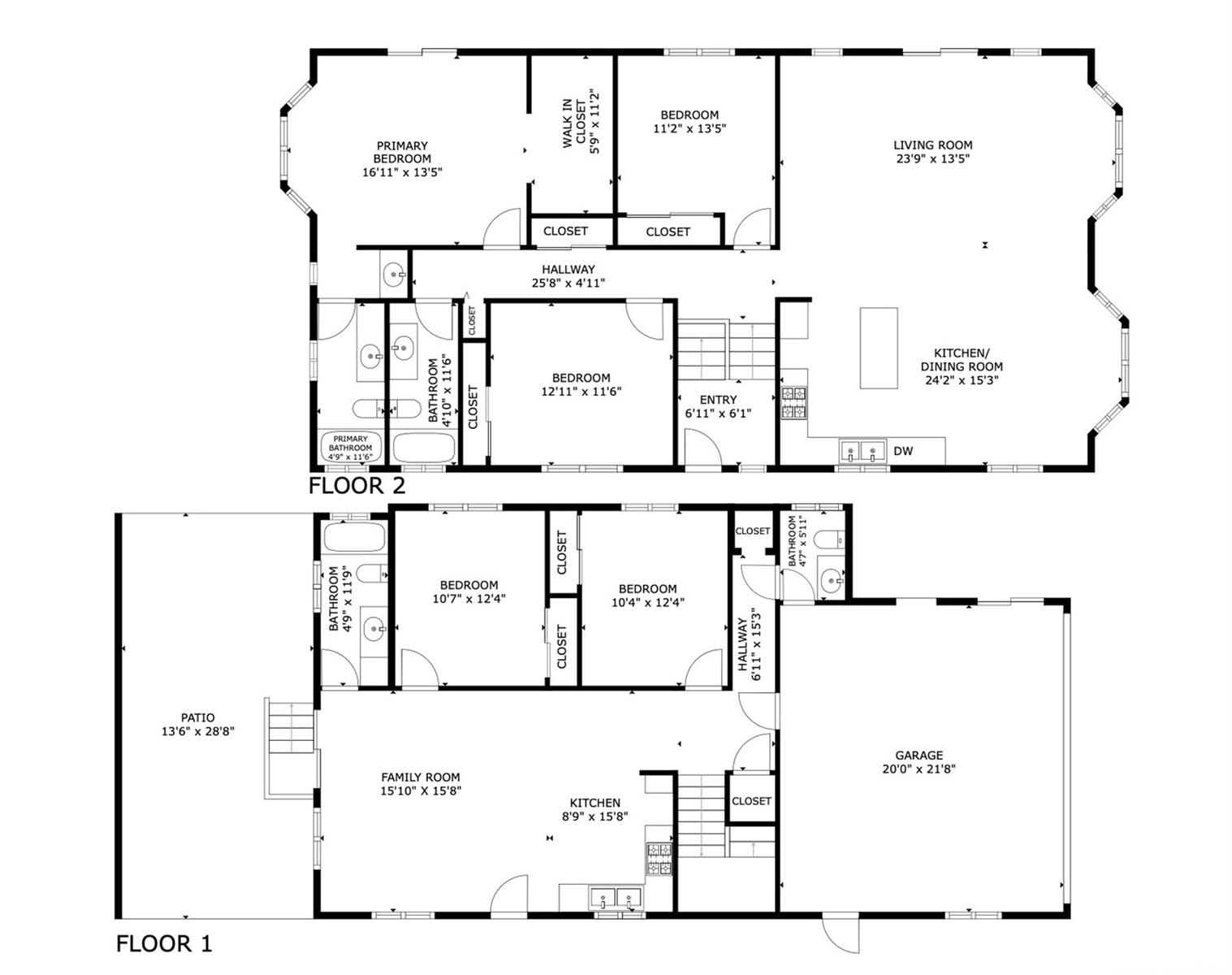
カイムキの中心部で驚きの価格!広々とした5ベッドルーム、3.5バスルームの住宅が、2026年の固定資産税評価額より約40万ドルも安く提供されています。柔軟な間取りで、2階には3つのベッドルームと2つのバスルーム、フルキッチン、ゆったりとしたリビングとダイニングエリアがあります。2階には、ウォークインクローゼット、2つのラナイ、そして海が少し見える広々とした主寝室もあります。1階には、2つのベッドルーム、1.5つのバスルーム、ウェットバー、大きな屋根付きラナイ、そしてオプションで独立した入り口があり、多様な生活スタイルに対応できます。この広々とした物件は、ホノルルで最も人気の高いエリアの1つで、あなたの好みに合わせてカスタマイズできる貴重な機会を提供します。床材、壁材、塗装、一般的な修理など、あなたの好みに合わせて仕上げる準備が整っており、間取り、広さ、そして全体的な構造は、長期にわたって優れた可能性を秘めています。2台分のガレージにはウォークイン収納エリアがあり、さらに私道にも駐車スペースがあります。今すぐ内覧のご予約を。売主は真剣なオファーを受け付けています。
※自動翻訳のため表現が適切でない場合がございます。
(原文)
Incredible Value in the Heart of Kaimuki! Massive 5-bedroom, 3.5-bath home offered at nearly $400K below the 2026 tax assessed value. The flexible floor plan features 3 bedrooms / 2 bathrooms upstairs with a full kitchen and generous living and dining areas. Upstairs also includes a spacious primary suite with a walk-in closet, two lanais, and peek-a-boo ocean views. Downstairs offers 2 bedrooms, 1.5 bathrooms, a wet bar, large covered lanai, and an optional separate entrance—providing versatile living options.
This spacious property presents a rare opportunity to personalize to your taste in one of Honolulu’s most desirable neighborhoods. The home is ready for your personal touch—including flooring, drywall, paint, and general repairs—while the layout, size, and overall structure offer exceptional long-term potential.
2-car garage with walk in storage area and extra driveway parking.
Book your showing today. Seller is open to serious offers.


