物件概要
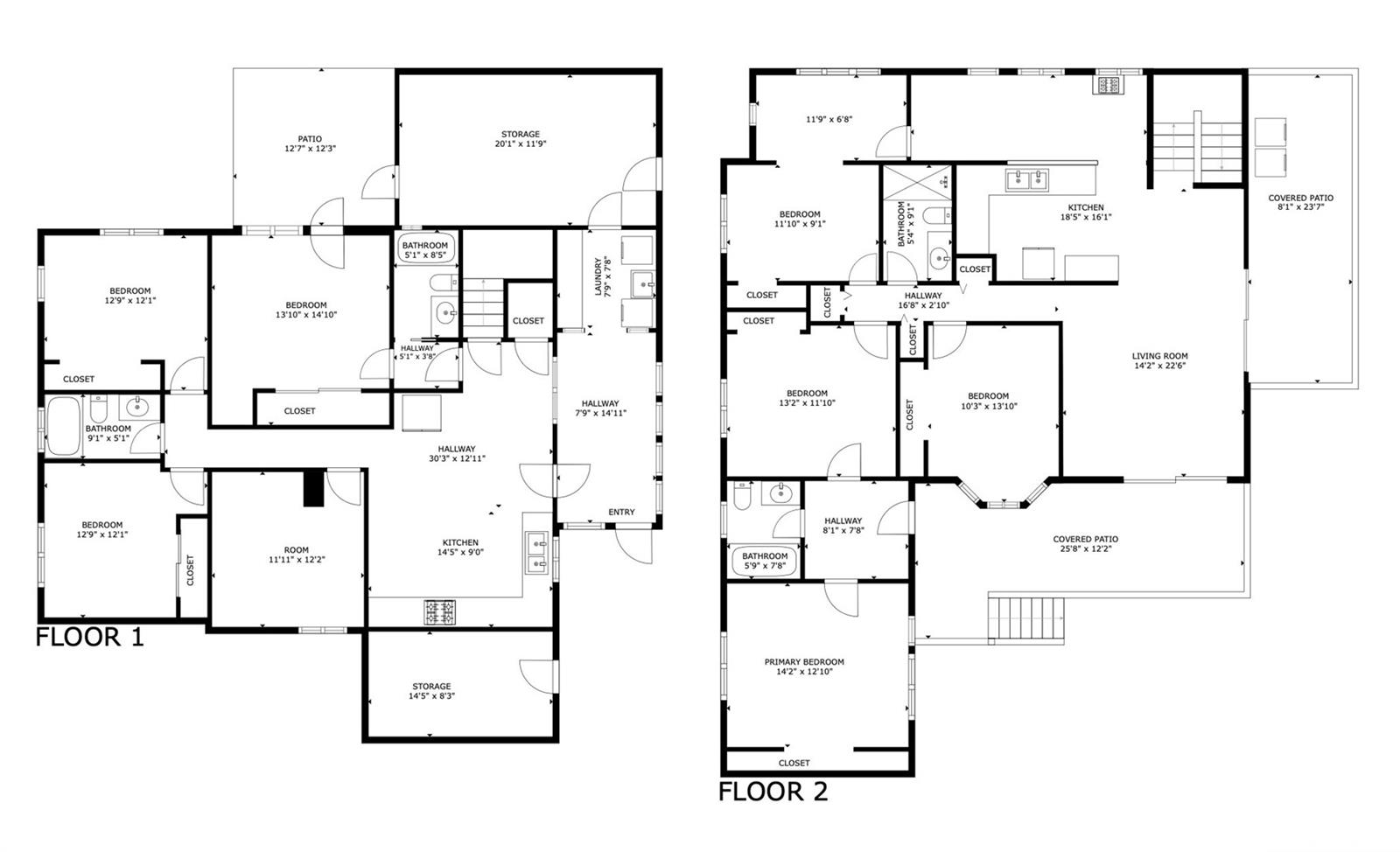
素晴らしい可能性を秘めた魅力的なオアフ島の物件でチャンスが待っています!広々とした敷地に建つこの家は、十分な駐車スペースと、多世代同居や賃貸物件として最適な柔軟な間取りが魅力です。2階には専用の入り口を持つ4つの寝室と2つのバスルーム、1階には専用の入り口を持つ3つの寝室と1つのバスルーム、さらに専用の入り口を持つ独立した寝室とバスルームがあります。また、3つの大きな収納スペースもあります。大家族、ゲスト、またはクリエイティブな用途に最適です。リラックスしたり、ゲストをもてなしたりするのに最適な、2つの大きな屋根付きラナイでアイランドライフを満喫してください。敷地は成熟した緑に囲まれており、プライバシーが確保され、真のアイランドの雰囲気を味わえます。ショッピングやレストランにも近く、街へのアクセスも便利です。この家は、カスタマイズ、投資、または夢のアイランドリトリートを創造したいと考えている購入者にとって素晴らしい機会です。30枚以上の所有PVパネルにより、電気代を抑えることができます。太陽熱温水器もプラスポイントです!1階には8月までリース契約中のテナントがいます。最高額のオファーは4月1日(水)午前10時までにお願いします。
※自動翻訳のため表現が適切でない場合がございます。
(原文)
Opportunity awaits in this charming Oahu property with incredible potential! Situated on a spacious lot, this home offers ample parking and a flexible layout ideal for multigenerational living or rental possibilities. Upstairs has 4 bedrooms and 2 bathrooms with it's own entry, downstairs has 3 bedrooms and one bathroom with it's own entrance and a separate bedroom and bathroom with it's own entrance. There are also 3 large storage areas. Ideal for extended family, guests, or creative use. Enjoy island living from 2 large covered lanais, perfect for relaxing or entertaining. The property is surrounded by mature greenery, adding privacy and a true island feel. Conveniently located near shopping, dining, and easy access to town. This home is a fantastic opportunity for buyers looking to customize, invest, or create their dream island retreat. 30+ owned PV panels help keep the electricity bill lower! Solar water heater is also a plus! There is a tenant downstairs with a lease through August. HIGHEST & BEST OFFER DUE WEDNESDAY 4/1 AT 10:00 AM.



藤澤太郎ハワイ不動産