物件概要
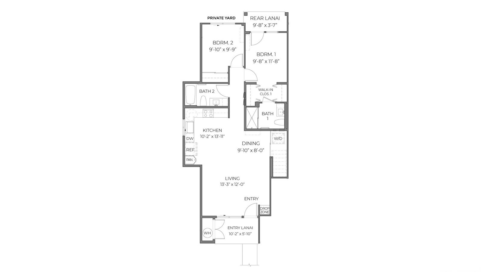
この地上階にある2ベッドルーム、2バスルームの角部屋コンドミニアムは、921平方フィートの居住スペースを備えています。屋根付きのエントランスラナイから中に入ると、開放的なリビングルームとキッチンが広がります。キッチンの奥には、ウォークインクローゼット、洗面台、トイレ、ウォークインシャワー付きの専用バスルーム、そしてリラックスして新鮮な空気を楽しめる裏側のラナイを備えた主寝室があります。隣には、鏡付きのスライドドアを備えた広々としたクローゼットのある2つ目の寝室があります。個別空調と、レンジ/オーブン、電子レンジ付き換気扇、食器洗い機、冷蔵庫、洗濯乾燥機などの最新家電が完備されており、快適な暮らしを実現します。
※自動翻訳のため表現が適切でない場合がございます。
(原文)
This single ground level 2 bedroom, 2 bath end unit condominium flat consists of 921 square feet of net living area. Step in from the covered entry lanai and enter the open concept living room and kitchen. Past the kitchen is the primary bedroom that includes a walk-in closet, ensuite bathroom with a vanity sink, water closet, step-in shower, and a rear lanai for relaxing and taking in the fresh air. Next door, the secondary bedroom includes a generously sized closet with mirrored sliding doors. Split air conditioning and modern appliances including a range/oven, micro-hood, dishwasher, refrigerator, and washer/dryer allow for ease of living.


