物件概要
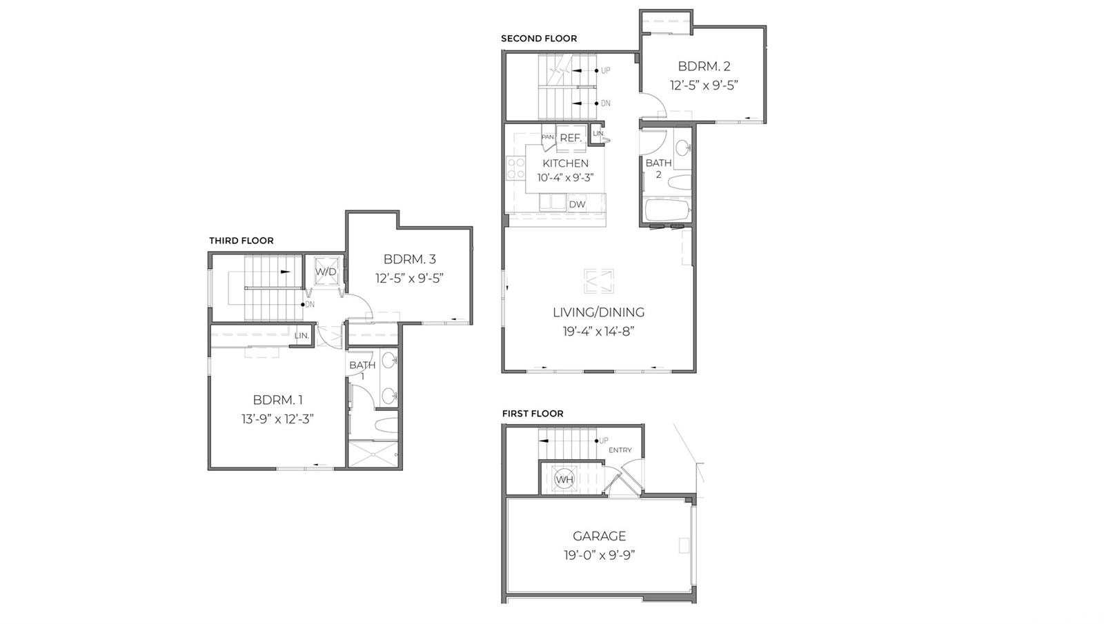
この3階建て、3ベッドルーム、2バスルームのコンドミニアムは、1,266平方フィート(正味)の居住空間と1階にガレージを備えています。家に入ると、ステンレス製の家電と白いキャビネットを備えたキッチンが迎えてくれます。キッチンはダイニングルームとリビングルームにシームレスにつながっています。メインフロアには、スライドドアクローゼット付きのセカンドベッドルームと、フルバスルームがあります。3階には、スライドドアクローゼット付きのサードベッドルームと、スライドドアクローゼット付きのメインベッドルーム、ダブルシンクの洗面台とウォークインシャワー付きの専用バスルームがあります。全館スプリットエアコンに加え、レンジ/オーブン、電子レンジ、レンジフード、食器洗い機、冷蔵庫、洗濯機/乾燥機などの最新家電が快適な暮らしをサポートします。
※自動翻訳のため表現が適切でない場合がございます。
(原文)
This three story 3 bedroom and 2 bathroom condominium consists of 1,266 square feet (net) of living area with an attached garage on the ground floor. When you step into this home, you will be greeted by the kitchen featuring stainless steel appliances and white cabinets. The kitchen flows seamlessly into the dining and living room. The main floor consists of a secondary bedroom with a sliding door closet, and a full bathroom. The third level features a third bedroom with a sliding door closet and the primary bedroom with a sliding door closet and ensuite bathroom with a double vanity and walk-in shower. Whole house split air conditioning and modern appliances including a range/oven, micro-hood, dishwasher, refrigerator, and washer/dryer allow for ease of living.


