物件概要
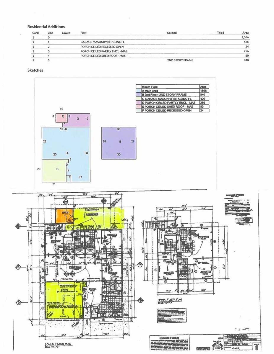
ロケーション、ロケーション、ロケーション!ワイキキビーチのすぐ近く。カピオラニ公園、動物園、ワイキキシェルまで徒歩圏内。ラキマウ通りは特別です。元の間取り:スプリットレベル、5ベッドルーム、4バスルーム、2,406平方フィート。4つの独立したユニットにリフォーム。元々は大家族が別々の入り口で暮らすために設計されました。1階:キッチン、リビングルーム、3ベッドルーム、3バスルーム。2階:ウェットバー、ファミリールーム、4番目のベッドルーム、主寝室、内階段と外階段付きバスルーム1室。この多目的フロアは2019年に4つの独立した賃貸ユニットに改装されました。上階:2ベッドルーム/1バスルーム、キッチン付き、ユニット#2(800平方フィート)。下階:ユニット#1(キッチン付き)、ユニット#3と#4にはそれぞれウェットバー、シンク、バスタブがあります。全ユニットにスプリットエアコン。屋根付きベランダ(256平方フィート)には共用の洗濯機/乾燥機があります。このベランダには独立した収納室が4室あります。メンテナンスの手間がかからない物件です。補足資料の「知っておくべき情報」をご覧ください。写真ファイルの間取り図のコピーをご覧ください。オファーは12月16日(火)午後2時まで受け付けます。*****2ベッドルーム/1バスルームの2階ユニット#2は、DP&Pの承認が必要で、合法的なADUユニットとなる可能性があります(可能性あり)。「知っておくべき情報」補足資料の「家賃」をご覧ください。****** 第2回オープンハウスは12月14日(日)午後2時から5時までです。
※自動翻訳のため表現が適切でない場合がございます。
(原文)
LOCATION, LOCATION, LOCATION! Located very near Waikiki Beach - walking distance to Kapiolani Park, Zoo & Waikiki Shell. Lakimau Street is SPECIAL. Original floor plan: SPLIT LEVEL, 5 bdrm, 4 bath w/2,406 sf; RE-MODELED into four separate units. Originally designed for extended family living w/separate entrances. 1st floor: kitchen, living rm, 3 bdrm, 3 bath. 2nd floor: wetbar, family rm, 4th bdrm, primary bedroom & 1 bath with an interior and exterior stairs. This versatile floor CONVERTED into 4 separate rental units in 2019. UP level: 2 bdrm/1 bath w/KITCHEN-designated as Unit #2 (800 sf). DOWN levels: Unit #1 w/KITCHEN, Units #3 & #4 each has a wet bar sink & bath. Split A/C in all units. A community washer/dryer in the covered lanai-256 sf. This lanai has 4 detached storage rooms. Property set up for low maintenance. See Good-to-Know Information in Supplement File. See floor plan copy in photo file. Offer(s) due on Tuesday, December 16 @ 2 PM.
*****The 2 bdrm/1 bath UP-2nd floor Unit #2 could be a legal ADU unit (maybe); subject to DP&P approval. See 'rent rolls' in Good-to-Know Supplement. ******
2nd Open House on 12/14: 2:00 to 5:00 pm.


