物件概要
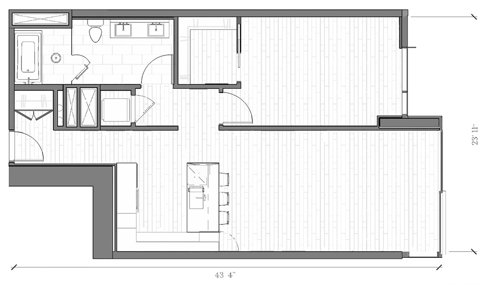
ビクトリア・プレイス・ユニット906は、ホノルル屈指の好立地で優雅さ、快適さ、そして息を呑むような眺望を求めるお客様に、まさにうってつけのラグジュアリーな1ベッドルーム・コンドミニアムです。約895平方フィート(約895平方メートル)の広々とした間取りと、洗練されたデザインが特徴のこのレジデンスは、スタイルと機能性の両方を最大限に引き出すよう設計されています。電動シェードやカスタムメイドのバスルームシェルフなど、ハイエンドな設備が、この住宅のモダンで洗練された雰囲気と利便性をさらに高めています。広々とした窓からは、太平洋、アラモアナ公園、ダイヤモンドヘッドの息を呑むような景色が広がり、日々の暮らしに静寂をもたらします。名門ビクトリア・プレイス・コミュニティ内に佇むこのコンドミニアムは、ワールドクラスのアメニティ、豪華なデザイン、そして比類なきロケーションを兼ね備え、究極のアイランドライフスタイルをお届けします。
※自動翻訳のため表現が適切でない場合がございます。
(原文)
This pristine luxury one-bedroom condominium, Victoria Place Unit 906, offers an exceptional opportunity for buyers seeking elegance, comfort, and stunning views in one of Honolulu’s most desirable addresses. Featuring a spacious layout with approximately 895 square feet of living space, this residence is thoughtfully designed to maximize both style and functionality. High-end upgrades, including motorized shades and custom bathroom shelving, elevate the home’s modern sophistication and convenience. Expansive windows frame breathtaking views of the Pacific Ocean, Ala Moana Park, and Diamond Head, creating a serene backdrop for everyday living. Perfectly situated within the prestigious Victoria Place community, this condo combines world-class amenities, luxurious design, and an unparalleled location to deliver the ultimate island lifestyle.



Locations LLC