物件概要
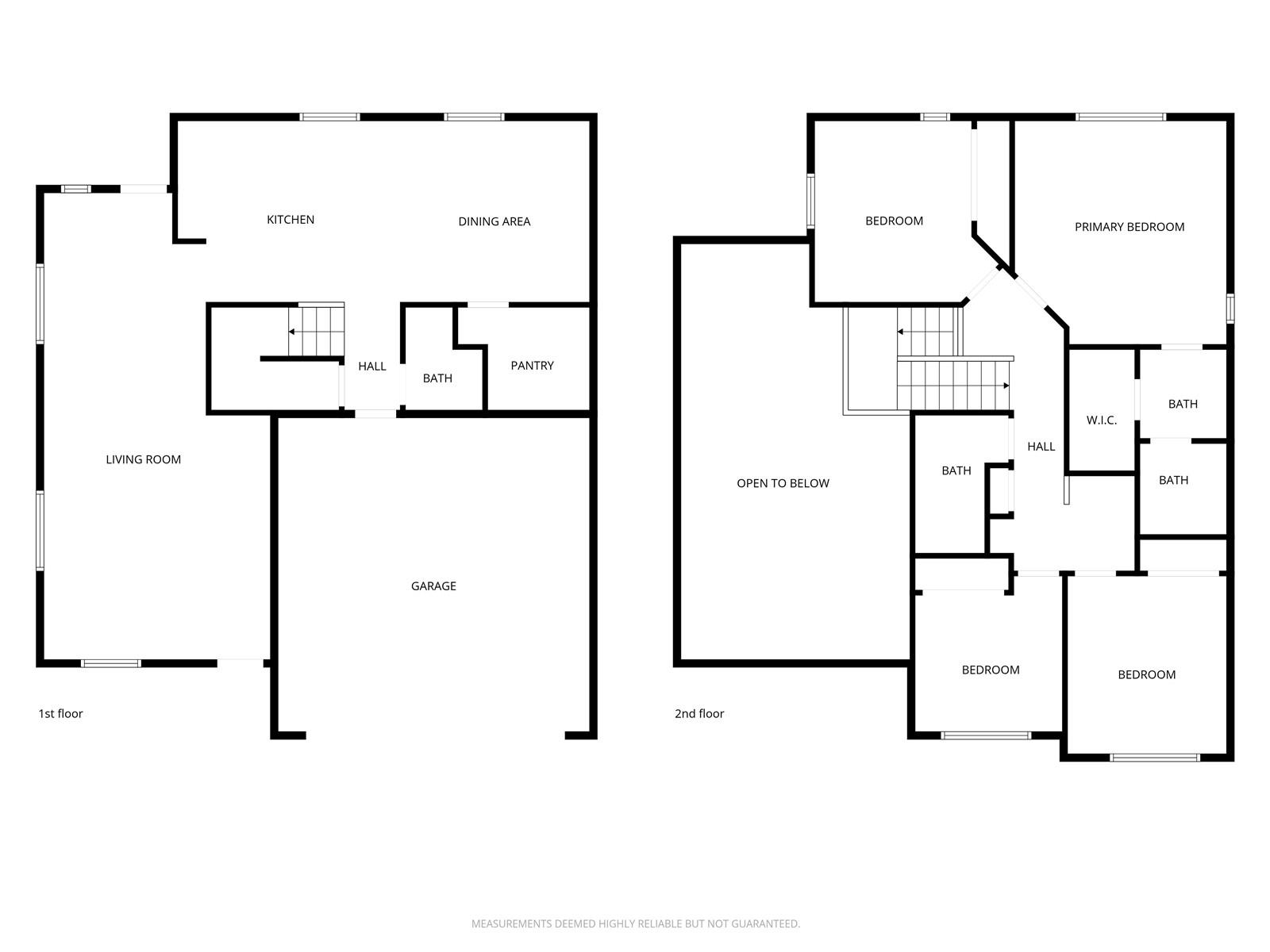
ホオピリ・カナラニ地区に位置する4ベッドルーム、2.5バスルームの一戸建て住宅は、広々とした道路と長い私道を備えた低密度の住宅街で、モダンなアイランドライフをお楽しみいただけます。角地に建つこの住宅は、1,720平方フィート(約167平方メートル)の洗練された居住空間を誇り、階下には2つのリビングエリア(吹き抜け天井のリビングルームとキッチンに面した独立したファミリールーム)があります。キッチンには、白いソフトクローズキャビネット、無垢材カウンタートップ、ステンレス製の電化製品、ペニンシュラ型の座席が備え付けられ、階下とバスルームにはビニール製のプランクフローリングが敷かれ、階上には豪華なカーペットが敷かれています。2階には4つのベッドルーム、2つのフルバスルーム、ビルトインのテックデスク、そしてダブルシンクとウォークインシャワーを備えたプライマリースイートがあります。その他の特徴としては、スプリットエアコン、リース太陽光発電システム、太陽熱温水器、ハイテクレンジフード、そして広々とした室内ウォークインパントリー/収納室などがあります。ホオピリ中心部に位置し、ソーホー・コミュニティセンター、サッカー場、ホノルル・スカイライン駅にも近く、ショッピング、レストラン、学校へのアクセスも良好です。ホオピリで最も綿密に計画された地域の一つに所有できる、稀有な機会です。
※自動翻訳のため表現が適切でない場合がございます。
(原文)
Located in Ho‘opili Kanalani, this 4-bedroom, 2.5-bath single-family home offers modern island living in a lower-density neighborhood with wider streets and longer driveways. Situated on a corner lot, this move-in-ready home features 1,720 sq. ft. of well-designed living space with two downstairs living areas, including a vaulted-ceiling living room and a separate family room open to the kitchen.
The kitchen features white soft-close cabinetry, solid-surface countertops, stainless steel appliances, peninsula seating, and vinyl plank flooring throughout the downstairs and bathrooms, with plush carpeting upstairs. The second floor includes four bedrooms, two full baths, a built-in tech desk, and a primary suite with dual sinks and a walk-in shower.
Additional highlights include split A/C, leased solar system, solar water heater, high-tech range hood, and a large interior walk-in pantry/storage room. Centrally located within Ho‘opili near the SoHo Community Center, soccer field, and Honolulu Skyline rail stations, with easy access to shopping, dining, and schools. A rare opportunity to own in one of Ho‘opili’s most thoughtfully planned neighborhoods.


