物件概要
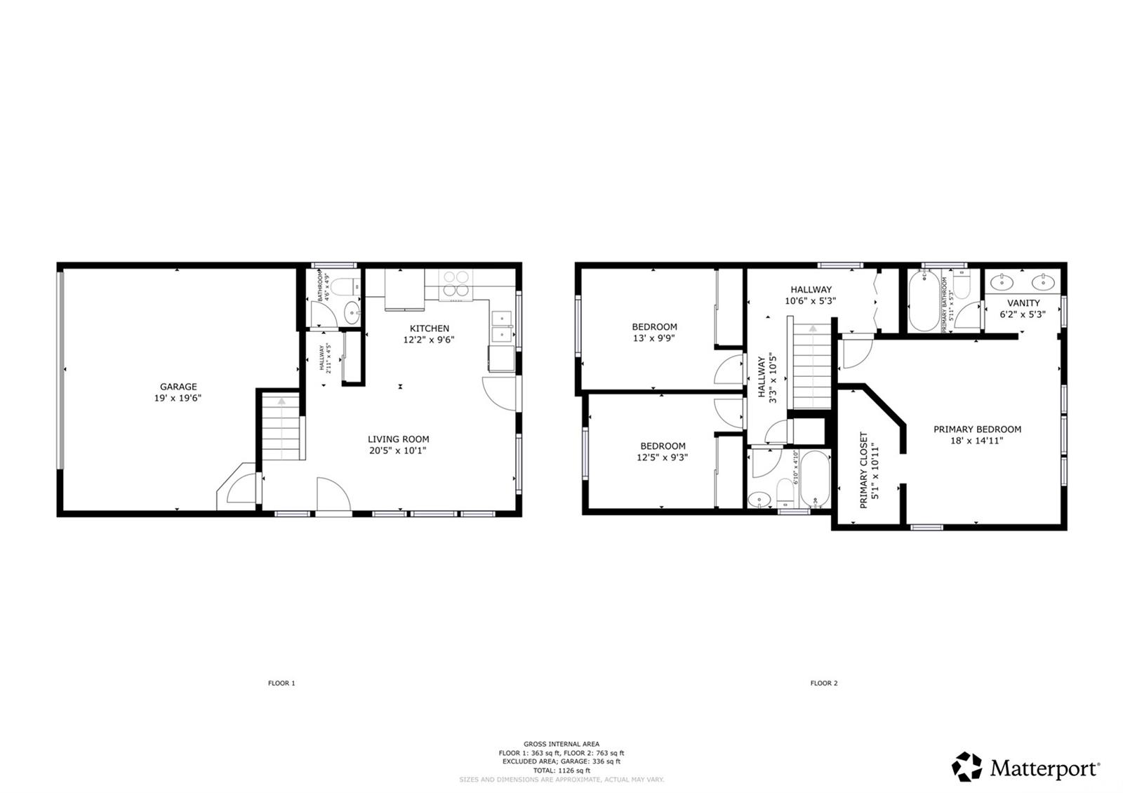
VA 承認済み | VA 引受金利 2.25% | エヴァ ジェントリー コルテベラの即入居可能住宅。大変人気のあるエヴァ ジェントリー – コルテベラ コミュニティに位置する、美しくリフォームされた 2 階建ての一戸建て住宅です。3 ベッドルーム、2.5 バスルームのこの住宅は、2,600 平方フィートの敷地に約 1,150 平方フィートの内部居住スペースを提供し、屋外でのエンターテイメントや日々の楽しみに最適な広々としたフェンスで囲まれた裏庭が特徴です。好ましい間取りによりすべての寝室が上階に配置され、プライバシーが確保されています。その他の注目点としては、2 台用の囲い付きガレージ、4 台の窓付きエアコン、全面的にリフォームされたフローリングなどがあります。明るく開放的なリビングエリアは集まりに最適で、リフォームされたキッチンには高品質の電化製品と十分な収納スペースがあります。居住者は、スイミング プール、カバナ、近隣の公園など、コルテベラのコミュニティ アメニティを利用できるため、真に家族向けのコミュニティとなっています。ショッピングセンター、一流校、公園に近く、ビーチ、ゴルフコース、主要な通勤ルートにも車ですぐという便利な立地です。2.25%のVA(退役軍人省)引受可能ローンは、条件を満たす購入者にとって稀有で貴重な機会です。空室で内覧も容易です。一部の画像はバーチャルリアリティで加工されています。
※自動翻訳のため表現が適切でない場合がございます。
(原文)
VA Approved | VA Assumable at 2.25% | Move-In Ready Home in Ewa Gentry Cortebella
Beautifully updated two-story single-family home located in the highly desirable Ewa Gentry – Cortebella community. This 3-bedroom, 2.5-bath home offers approximately 1,150 sq. ft. of interior living space on a 2,600 sq. ft. lot, featuring a spacious fenced backyard ideal for outdoor entertaining and everyday enjoyment.
The favorable floor plan places all bedrooms upstairs, providing added privacy. Additional highlights include an enclosed two-car garage, four window A/C units, and updated flooring throughout. The bright, open living area is perfect for gatherings, while the updated kitchen offers quality appliances and ample cabinet space.
Residents enjoy access to Cortebella’s community amenities, including a swimming pool, cabana, and neighborhood park, making this a truly family-friendly community.
Conveniently located near shopping centers, top-rated schools, parks, just a short drive to beaches, golf courses, and major commuter routes.
A VA assumable loan at 2.25% presents a rare and valuable opportunity for eligible buyers.
Vacant & Easy to Show.
Some images are virtually enhanced.


