物件概要
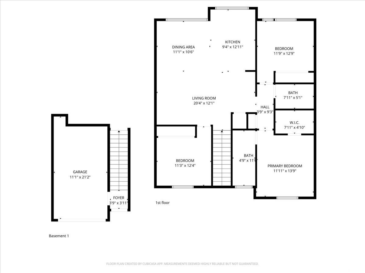
新規掲載物件…滅多にない3ベッドルーム、2バスルーム、2台分の駐車場を備えたこの物件は、細部までこだわって整備されており、オープンフロアプラン、新しい高級ビニールフローリング、コーリアン製カウンタートップ、アップグレードされたキャビネット、密閉式ガレージ、エアコン、ウォークインクローゼット、プランテーションシャッター、ステンレス製家電、ダブルシンクの洗面台、十分な収納スペース、ビデ、涼しい風、フルサイズの洗濯乾燥機を完備。さらに、背後に隣人がいないためプライバシーも確保されています。ノホナは、ペットフレンドリーで、管理費も低く、十分なゲスト用駐車場を備え、公園、学校、レストラン、コストコ、バス路線までわずか数分、高速道路へのアクセスも容易な、まさに理想的なファミリーコミュニティです。この機会をお見逃しなく!
※自動翻訳のため表現が適切でない場合がございます。
(原文)
NEW LISTING…This RARELY available 3 Bed/2 Bath/2 Parking unit has been meticulously maintained and features an open floorplan, new luxury vinyl flooring, Corian countertops, upgraded cabinets, enclosed garage, AC, walk-in closet, plantation shutters, stainless steel appliances, double vanity sink, ample storage, bidet, cool breezes, full size washer dryer, and added privacy with no neighbor behind. Nohona is a perfect family community that is pet friendly, low maintenance fees, ample guest parking, & just minutes from parks, schools, restaurants, Costco, bus lines, and easy freeway access…Don’t miss this opportunity!!


