物件概要
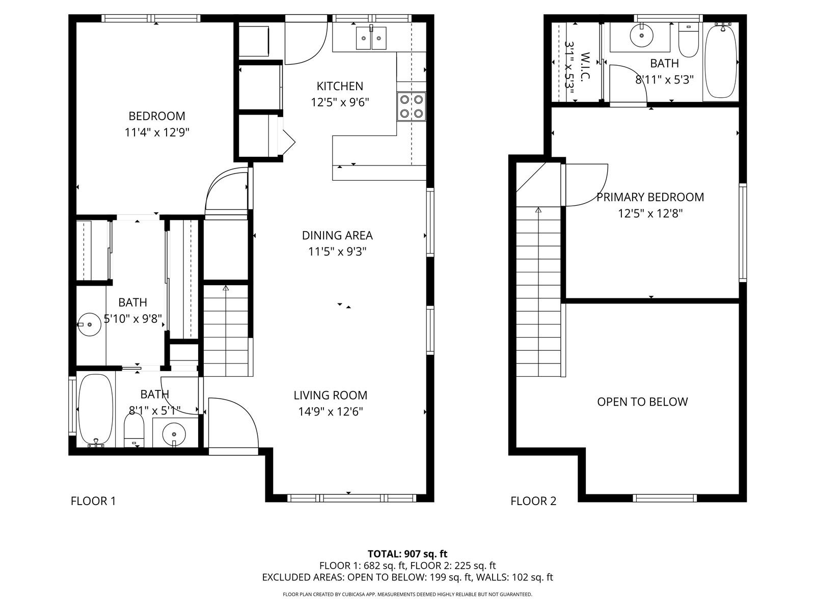
エヴァ・ジェントリーにあるThe Lofts at Alii Coveへようこそ。快適さ、スタイル、そして省エネが融合した住まいです。美しく手入れされた2ベッドルーム、2バスルームのこの住宅は、広々とした間取りで、吹き抜け天井、セントラルエアコン、そして洗練されたビニールラミネートフローリングを備えています。フルバスルーム付きの主寝室は1階に位置し、2つ目のベッドルームとフルバスルームはプライバシーを確保しながら快適にお過ごしいただけます。2台分のカーポートに加え、2台分の私道スペース、そして近隣にはゲスト用駐車場もございますので、ぜひご利用ください。緑豊かなオープンスペースの向かいに位置するこの住宅は、活気あるコミュニティの中で静かなひとときをお過ごしいただけます。最新の設備に加え、最新の家電製品や、21枚の太陽光発電パネルと2台のテスラパワーウォールバッテリーを備えた強力な省エネ設備など、最新の設備も整っており、光熱費の節約にも役立ちます。エヴァの中心部に位置し、ショッピング、レストラン、エンターテイメント、銀行、郵便局、公共交通機関までわずか数分です。ボーナス:この物件には、2.25%という非常に低い金利でVA(退役軍人省)の引継ぎ可能なローンが付帯しています。これは、資格のあるVA購入者にとって特別な機会です。オアフ島で最も急速に成長している地域の一つで、この物件を所有するチャンスをお見逃しなく!
※自動翻訳のため表現が適切でない場合がございます。
(原文)
Step into The Lofts at Alii Cove in Ewa Gentry—where comfort, style, and energy efficiency meet! This beautifully maintained 2-bedroom, 2-bath home features a spacious layout with vaulted ceilings, central air conditioning, and sleek vinyl laminate flooring. The primary suite with a full ensuite bath is conveniently located on the first floor, while the second bedroom and full bath offer privacy upstairs. Enjoy the convenience of a 2-car carport plus two additional driveway spaces, along with guest parking nearby. Positioned across from a lush green open space, this home offers a peaceful setting in a thriving community. Modern upgrades include updated appliances and a powerful energy-efficient setup with 21 owned photovoltaic panels and 2-Tesla Powerwall batteries—helping you save on utilities. Located in the heart of Ewa, you're just minutes from shopping, dining, entertainment, banks, the post office, and public transportation. BONUS: This property comes with a VA assumable loan at an incredibly low 2.25% interest rate. This is an exceptional opportunity for qualified VA buyers. Don’t miss your chance to own in one of Oahu’s fastest-growing neighborhoods!


