物件概要
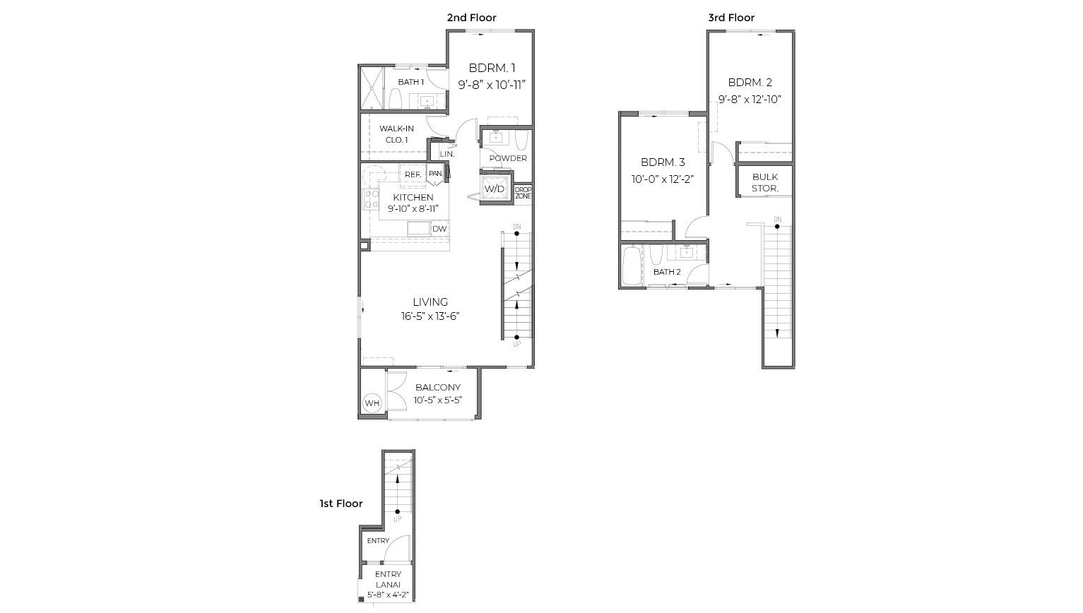
この3階建て、3ベッドルーム、2.5バスルームのコンドミニアムは、居住面積1,317平方フィートです。玄関を入ると、リビングルームとペニンシュラキッチンへと続く階段があり、キッチンにはステンレス製の家電製品と白いソフトクローズキャビネットが備えられています。近くには便利なパウダールームがあります。2階には、ウォークインクローゼットと洗面台とウォークインシャワー付きの専用バスルームを備えた主寝室があります。リビングルームから続くバルコニーで、リラックスして新鮮な空気をお楽しみください。3階には、それぞれ鏡付きのスライドドアクローゼットを備えた2つのセカンドベッドルームと、オープンコンセプトのファミリールームに隣接するバスタブとシャワーが一体となったセカンドバスルームがあります。スプリットエアコンと、レンジ/オーブン、電子レンジフード、食器洗い機、冷蔵庫、洗濯乾燥機などの最新家電製品により、快適な生活を送ることができます。
※自動翻訳のため表現が適切でない場合がございます。
(原文)
This three story 3 bedroom and 2.5 bathroom condominium consists of 1,317 square feet of net living area. When you step into this home, you will be greeted by a staircase that leads you into the living room and peninsula kitchen featuring stainless steel appliances and white soft-close cabinets. Nearby is a convenient powder room. On the second floor, you'll find the primary bedroom with a walk-in closet and ensuite bathroom with a vanity sink and walk-in shower. Relax and take in the fresh air on the balcony off the living room. The third floor features two secondary bedrooms each with mirrored sliding door closets and a secondary bathroom with a combination bathtub and shower adjacent to an open concept family room. Split air conditioning and modern appliances including a range/oven, micro-hood, dishwasher, refrigerator, and washer/dryer allow for ease of living.


