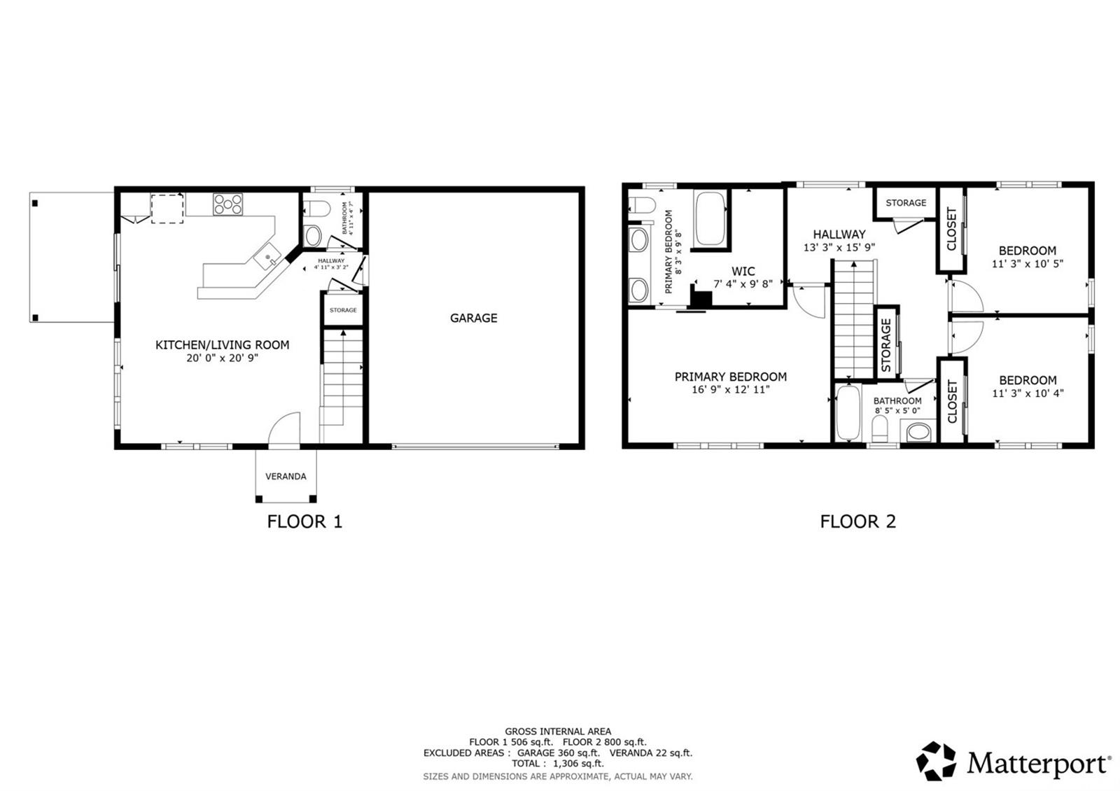
物件概要
ラウラニ・タイズ・アット・エヴァ・ジェントリーの中でも最高のロケーションにある、すぐにでも入居可能な住宅です。後ろに家がないため、開放的な眺望と高いプライバシーが確保されています。美しく改装されたこの3ベッドルーム、2.5バスルームの住宅には、2台分のガレージと、さらに2台の車を駐車できる広い私道が備わっています。2023年から2024年にかけて行われた最近の改修工事では、キッチンキャビネット、クォーツカウンタートップ、ステンレス製家電製品がすべて新しくなりました。スタイリッシュなプランテーションシャッターとメンテナンスの手間がかからない高級ビニールプランクフローリングが家全体に敷かれています。広々とした主寝室には、ダブル洗面台と、アップグレードされたクローゼットシステムを備えた大きなウォークインクローゼットがあります。エネルギー効率の高い設備として、バックアップバッテリー付きの16枚のパネルからなるリース型太陽光発電システム、2021年に交換されたセントラルエアコン、2020年に設置された太陽熱温水器があります。開発地内で最も広いフェンス付きの庭の1つは、リラックスしたり、ゲストをもてなしたりするのに最適な屋外スペースを提供します。公園、ショッピング、レストラン、ビーチなどにも近く、便利な立地です。コミュニティのアメニティには、プールとバーベキューエリアがあります。すぐにでも入居可能な状態ですので、ぜひ一度ご覧ください。掲載写真の一部は、画像加工が施されています。
※自動翻訳のため表現が適切でない場合がございます。
(原文)
Move in ready home in one of the best locations within Laulani-Tides at Ewa Gentry. Enjoy open views with no home directly behind, offering added privacy. This beautifully remodeled 3 bedroom, 2.5 bath residence features an attached 2 car garage plus a large driveway accommodating two additional vehicles. Recent upgrades completed in 2023 to 2024 include all new kitchen cabinets, quartz countertops,and stainless steel appliances. Stylish plantation shutters and low maintenance luxury vinyl plank flooring run throughout the home. The spacious primary suite offers dual vanities and a large walk in closet with an upgraded closet system. Energy efficient features include a 16 panel leased photovoltaic system with backup battery, a central A/C system replaced in 2021, and a solar water heater installed in 2020. One of the larger fenced yards in the development provides excellent outdoor space for relaxing or entertaining. Conveniently located near parks, shopping, restaurants, beaches, and more. Community amenities include a pool and BBQ area. Truly move in condition and a must see opportunity. One or more photos have been virtually enhanced.


