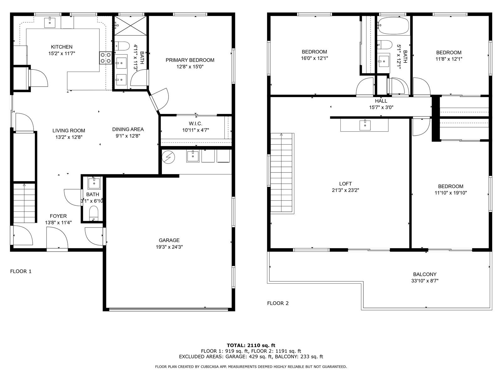
物件概要
マイリ地区のマイリ・ガーデンズに新しく開発された物件です。この新築戸建て住宅のオーナーに、ぜひご登録ください。4つのベッドルーム、2つのフルバスルーム、そして階下に1/2のハーフバスルームを備えています。広々としたリビングスペースを備え、1階には主寝室、大型ウォークインクローゼット、ダブルシンク付きの専用バスルームがあります。2階にはウェットバー付きの居心地の良いファミリールームがあり、屋根付きの広々としたベランダを見渡せます。モダンなスタイルのキッチンには、ソフトクローズキャビネット、ステンレス製の電化製品、セントラルエアコンが備わっています。ショッピング、学校、公園に近く、ビーチからも数分の距離です。内覧も簡単です。
※自動翻訳のため表現が適切でない場合がございます。
(原文)
New Development in the Maili neighborhood MAILI GARDENS. Be the first to own this newly constructed single-family detached home. This home boast 4 bedrooms, 2 Full baths and 1/2 half bath downstairs. This property offers spacious living; a primary bedroom located on the first floor, large walk-in closet, en-suite bathroom with dual sinks. A cozy family room with a wet bar located on the 2nd floor overlooking a covered spacious lanai. The modern style kitchen offers soft-close cabinets, stainless steel appliances, central AC. Located near shopping, schools, parks and minutes away from beaches. Easy to show.


