物件概要
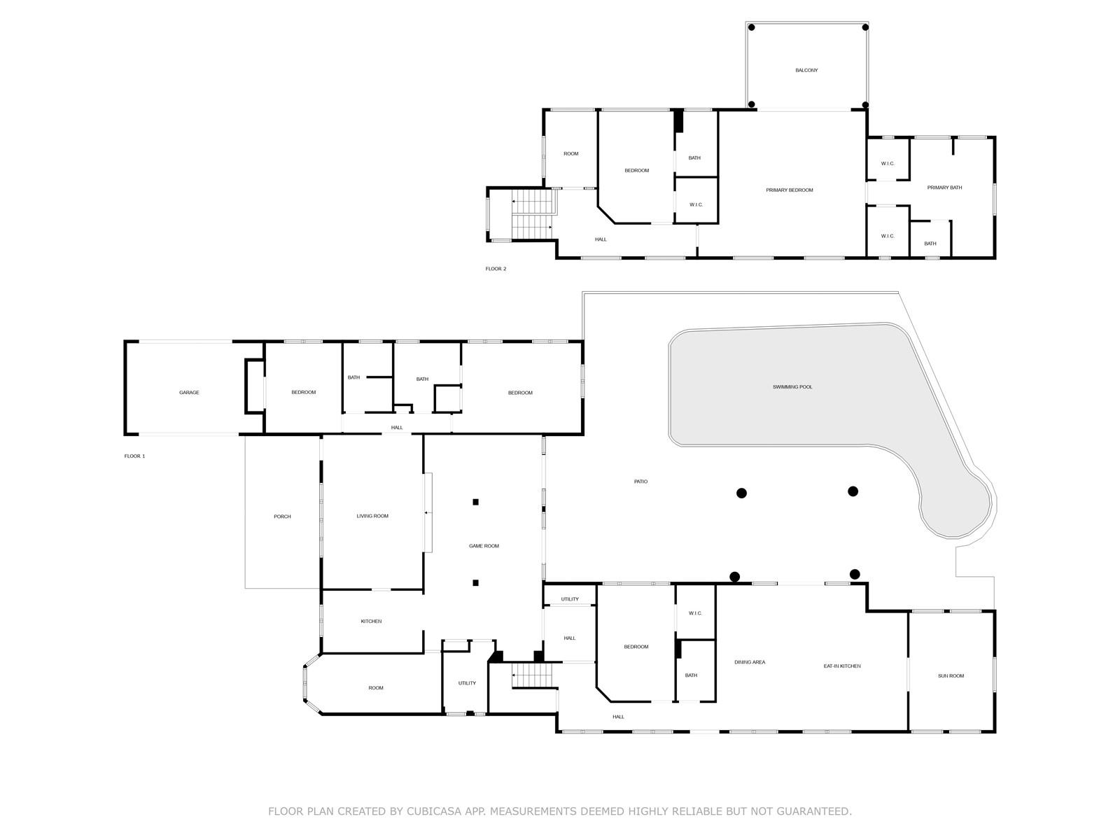
快適さと多様性が融合した、希少なアイランドリトリート、ハレ・マカニ・マリーへようこそ。広々とした5ベッドルーム、5バスルームのこの邸宅は、緑豊かな12,000平方フィート(約1,600平方メートル)以上の敷地に、5,000平方フィート(約460平方メートル)を超えるフレキシブルな居住空間を提供します。適応性を考慮して設計されたこの住宅は、ホームケア認定のオハナユニットを併設しており、多世代同居、プライベートプールハウス、または賃貸物件としての利用に最適です。パイコビーチを見下ろす広々としたベランダからは、雄大な海の景色と爽やかな潮風をお楽しみいただけます。大きなプールと、ココナッツとライムの木が織りなすトロピカルなランドスケープが、屋外でのくつろぎを演出します。複数の車やボートを停められる十分な駐車スペースも、この他に類を見ない魅力を添えています。島の魅力と現代的な柔軟性が融合した、真のサンクチュアリです。
※自動翻訳のため表現が適切でない場合がございます。
(原文)
Welcome to Hale Makani Malie, a rare island retreat where comfort meets versatility. This expansive 5-bedroom, 5-bath residence offers over 5,000 sq. ft. of flexible living space on a lush 12,000+ sq. ft. lot. Designed with adaptability in mind, the home features an attached Ohana unit with home-care approval, making it ideal for multi-generational living, a private pool house, or an additional rental opportunity.
Enjoy sweeping ocean views and refreshing sea breezes from expansive lanais overlooking Paiko Beach. Outdoor living shines with a large pool, and tropical landscaping highlighted by coconut and lime trees. Ample parking for multiple cars or a boat completes this one-of-a-kind offering. A true sanctuary blending island charm and modern flexibility.


