物件詳細

91-1170 Hoonaauao Street #710, Kapolei HI 96707

  • 売出物件
  • 売出中

3

2

$698,535

物件概要

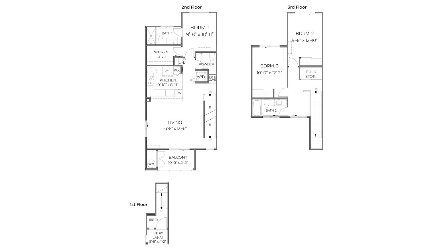
この3階建て、ベッドルーム3室、バスルーム2.5室のコンドミニアムは、総面積1,317平方フィート(約148平方メートル)の居住空間を誇ります。一歩足を踏み入れると、リビングルームとペニンシュラキッチンへと続く階段が目に入ります。キッチンにはステンレス製の電化製品と白いソフトクローズキャビネットが備え付けられています。近くには便利なパウダールームもございます。2階には、ウォークインクローゼット付きの主寝室、洗面台とウォークインシャワー付きの専用バスルームがございます。リビングルームに続くバルコニーで、新鮮な空気を吸いながらゆったりとお過ごしください。3階には、鏡付きのスライドドアクローゼットを備えた2つの寝室と、バスタブとシャワーが一体となった2つ目のバスルームがあり、その隣にはオープンコンセプトのファミリールームがございます。スプリットエアコンと、レンジ/オーブン、電子レンジ、レンジフード、食器洗い機、冷蔵庫、洗濯機/乾燥機などの最新設備が快適な暮らしをお約束します。*レッドタグセールは2025年10月19日まで。

※自動翻訳のため表現が適切でない場合がございます。

(原文)
This three story 3 bedroom and 2.5 bathroom condominium consists of 1,317 square feet of net living area. When you step into this home, you will be greeted by a staircase that leads you into the living room and peninsula kitchen featuring stainless steel appliances and white soft-close cabinets. Nearby is a convenient powder room. On the second floor, you'll find the primary bedroom with a walk-in closet and ensuite bathroom with a vanity sink and walk-in shower. Relax and take in the fresh air on the balcony off the living room. The third floor features two secondary bedrooms each with mirrored sliding door closets and a secondary bathroom with a combination bathtub and shower adjacent to an open concept family room. Split air conditioning and modern appliances including a range/oven, micro-hood, dishwasher, refrigerator, and washer/dryer allow for ease of living. *Red Tag Sale Event now until 10/19/25.

物件詳細

住所 91-1170 Hoonaauao Street #710, Kapolei HI 96707
物件タイプ 住居 コンドミニアム・タウンハウス
ベッドルーム 3ベッド
バスルーム 2バスルーム
駐車場(台数) 2台
築年 2025年
室内面積 1,317.0sqft(約122㎡) ラナイ面積
建物面積 敷地面積
管理費 $661 月額の固定資産税
共有設備 スプリンクラーシステム
室内設備 AC Split,Blinds,Dishwasher,Disposal,Dryer,Home Warranty,Microwave Hood,Range/Oven,Refrigerator,Smoke Detector,Washer,Water Heater
眺望
近隣学校(校区) HOOPILI-ALANA
FSおよびLH 土地所有権付
MLSナンバー 202521386

不動産会社・
エージェントにお問合せ
閉じる

おすすめのエージェント

ご希望のお問合せ先を選択してください