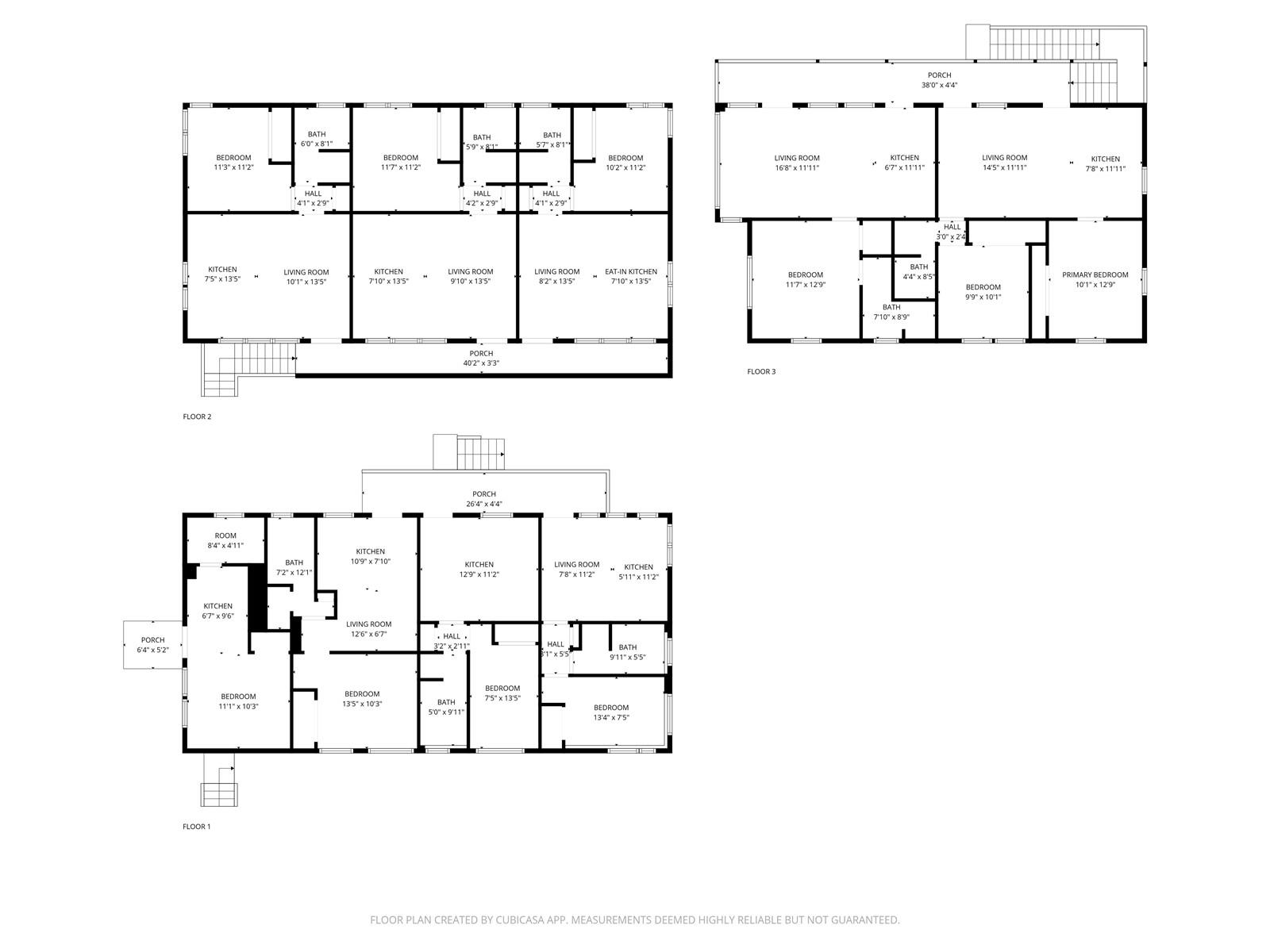
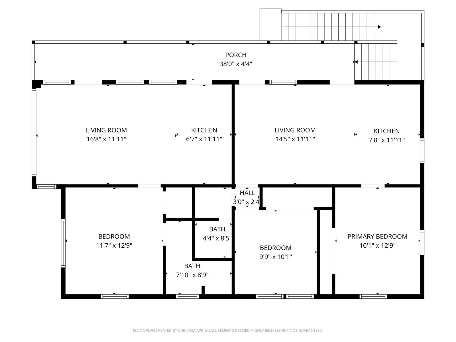
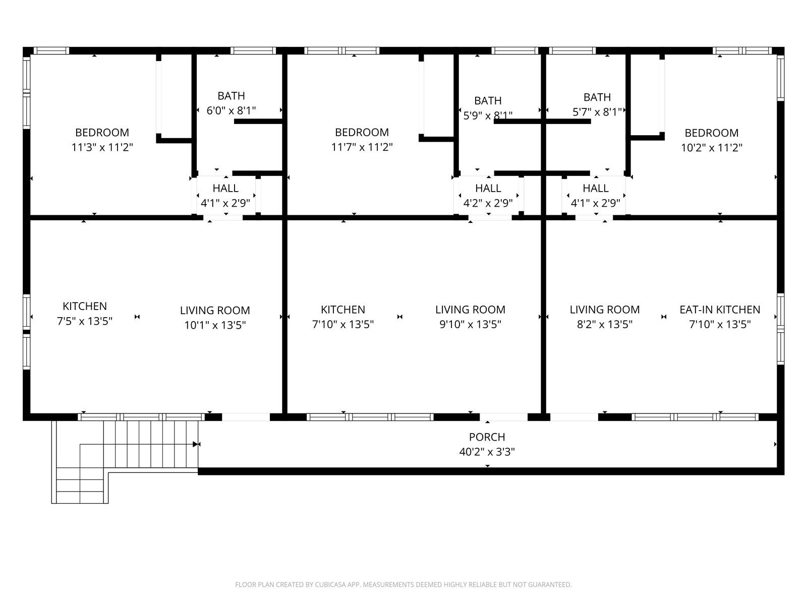
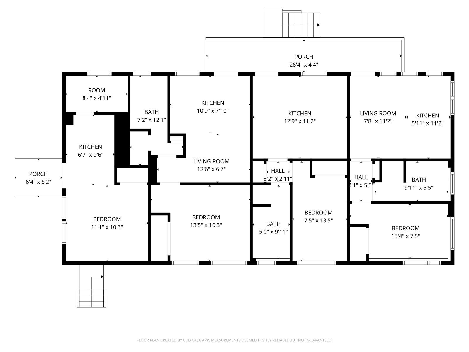
物件概要
絶好の投資機会 - わずかな変更のみで、キャップレート7%以上の即時収益アップサイドを実現! - ホノルル中心部、マゼラン通り404番地に位置する9戸の物件は、各戸に9つの独立した電気メーター、9つの独立したガスメーター、そして個別のガス給湯器を備えた強固な基盤を備えています。これは、テナントの独立性を最大限に高め、所有コストを削減する稀有な設定です。建物は現在も堅実な賃貸実績により収益を生み出しており、優れた上昇ポテンシャルを秘めています。市場価格に合わせて賃料を引き上げるか、軽微な改修やアップグレードを行うことで、収益を向上させることができます。学校、店舗、主要交通機関に近い好立地で、柔軟性と長期的な成長の機会を提供する物件です。今日のキャッシュフローと将来の成長の余地を求める投資家にとって必見の物件です。
※自動翻訳のため表現が適切でない場合がございます。
(原文)
PRIME INVESTMENT OPPORTUNITY - REALIZE IMMEDIATE INCOME UPSIDE OF 7% + CAP RATE W/ ONLY A FEW MINOR CHANGES!! - In the heart of Honolulu this 9-unit property at 404 Magellan Ave offers a strong foundation with 9 separate electric meters, 9 separate gas meters, and individual gas water heaters for each unit—a rare setup that maximizes tenant independence and reduces ownership expenses. The building is currently generating income with solid rental history, and offers excellent upside potential: simply increase rents to market value or enhance returns with light remodeling or upgrades. This property provides flexibility and long-term growth opportunities in a highly desirable location close to schools, shops, and major transit routes. A must-see for investors looking for cash flow today and room to grow tomorrow!


