物件概要
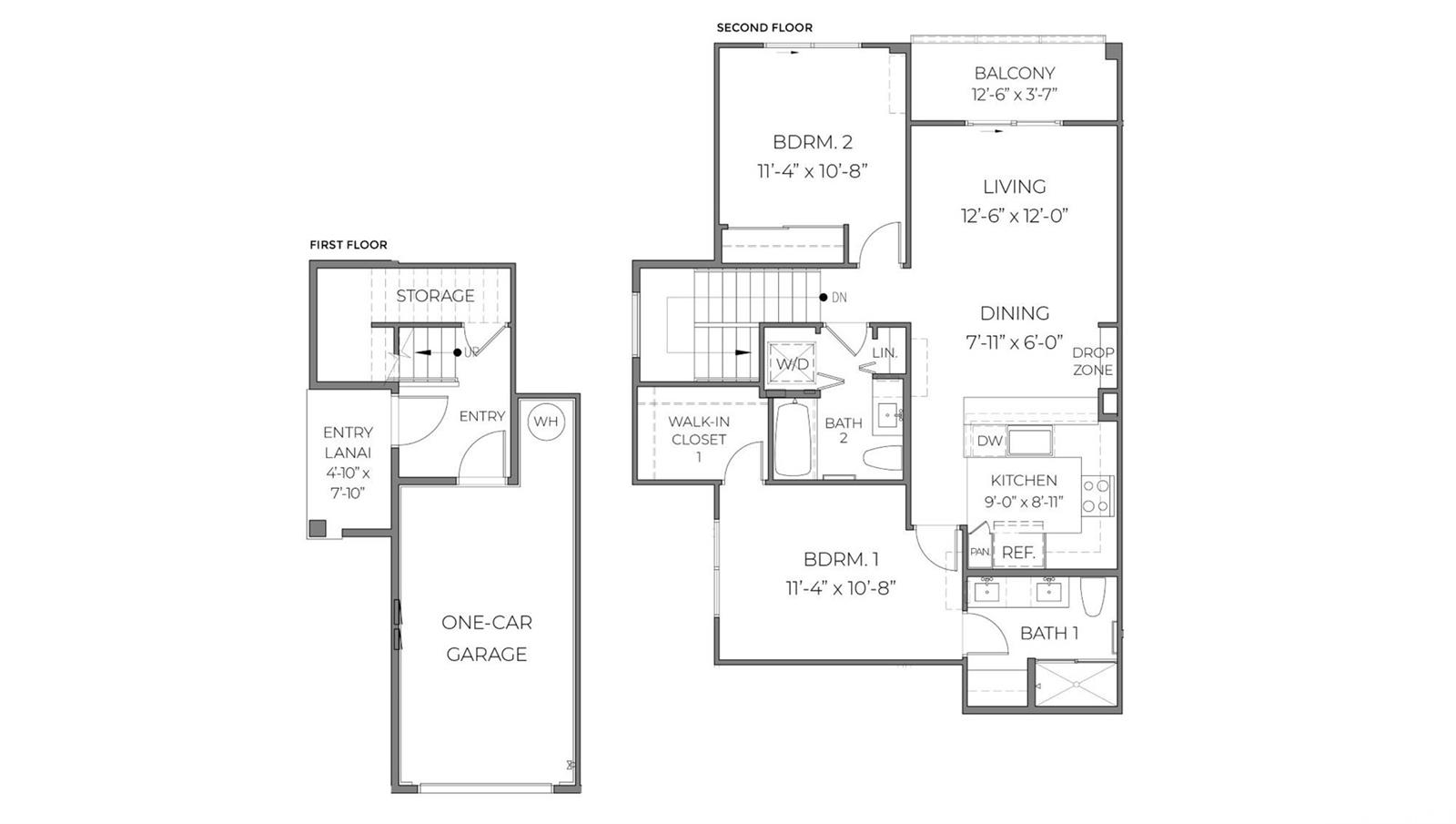
この2階建て、2ベッドルーム、2バスルームの端のユニットのコンドミニアムは、正味居住面積1,004平方フィートで構成されています。この家に入ると、リビングルームに続く階段があり、そこからシームレスにキッチンへと続きます。キッチンにはステンレス製の電化製品と白いソフトクローズキャビネットがあります。この階には、ウォークインクローゼットとダブル洗面台、水洗トイレ、ウォークインシャワー付きの専用バスルームがある主寝室があります。廊下を進むと、ゆったりとしたサイズのクローゼットと鏡付きのスライドドアがある第2の寝室があります。さらに、第2のバスルームにはバスタブとシャワーが一体になっています。この家には1台分のガレージが付いています。スプリットエアコンと、レンジ/オーブン、電子レンジ、レンジフード、食器洗い機、冷蔵庫、洗濯機/乾燥機などの最新の電化製品で快適な暮らしを実現します
※自動翻訳のため表現が適切でない場合がございます。
(原文)
This two story 2 bedroom and 2 bathroom end unit condominium consists of 1,004 square feet of net living area. When you step into this home, you will be greeted by a staircase that leads you into the living room which flows seamlessly into the kitchen featuring stainless steel appliances and white soft-close cabinets. On this floor, you'll find the primary bedroom with a walk-in closet and ensuite bathroom with a double vanity, water closet and walk-in shower. Down the hall, you're greeted by the secondary bedroom with a generously sized closet and mirrored sliding doors. Additionally, the secondary bathroom includes a combination bathtub and shower. Attached to this home is a single-car garage. Split air conditioning and modern appliances including a range/oven, micro-hood, dishwasher, refrigerator, and washer/dryer allow for ease of living
RedTag Sales Event, special pricing ends 2/1/26!


