物件概要
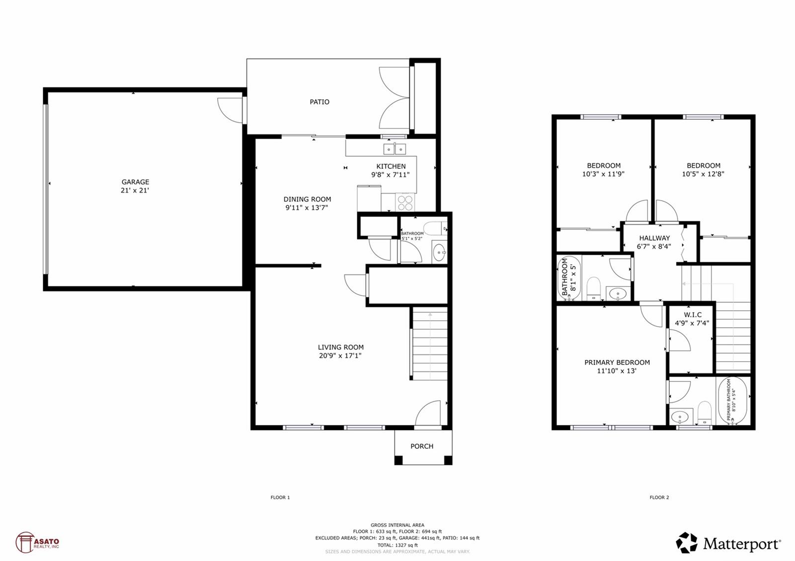
5万ドル値下げ!人気のワイルナにある、美しく手入れされた3ベッドルーム、2.5バスルームの角部屋タウンホーム。裏に隣家がないためプライバシーが確保され、室内へ直接アクセスできる2台分のガレージも便利です。室内には、スプリットエアコン、ステンレス製家電、改装済みのキッチン、エネルギー効率を高める太陽光発電(PV)パネルが備わっています。静かな環境にある屋根付きラナイでリラックスしたり、ゲストをもてなしたりできます。ワイルナには、プール、テニスコート、レクリエーションエリアなどのリゾートスタイルのアメニティがあり、ショッピング、レストラン、高速道路へのアクセス、パールリッジにも便利な場所に位置しています。すぐに入居可能です。
※自動翻訳のため表現が適切でない場合がございます。
(原文)
$50,000 price improvement!
Beautifully maintained 3-bedroom, 2.5-bath corner end-unit townhome in highly desirable Wailuna. Enjoy added privacy with no rear neighbors and the convenience of a 2-car enclosed garage with direct interior access. The home features split A/C, stainless steel appliances, an updated kitchen, and photovoltaic (PV) panels for improved energy efficiency. Relax or entertain on the covered lanai in a peaceful setting.
Wailuna offers resort-style amenities including pools, tennis courts, and recreation areas, all conveniently located near shopping, dining, freeway access, and Pearlridge. Move-in ready.


