物件概要
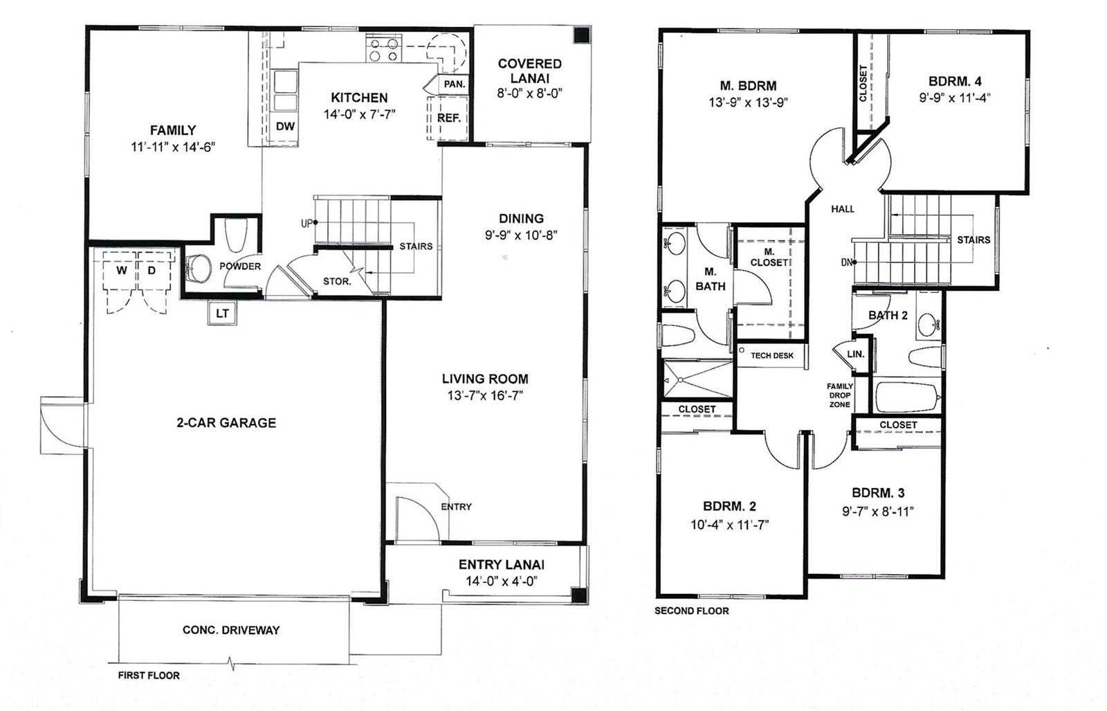
角地!人気のレフア・アット・フーピリ地区にある、4ベッドルーム、2.5バスルーム、2台駐車可能なガレージと車道付きのこの住宅は、きっと気に入っていただけるでしょう。ステンレス製の家電製品、スプリットエアコン、ビニールフローリング、太陽熱温水器、物置を完備しています。コミュニティアメニティには、プール、プレイグラウンド、サッカー場、ピックルボールコート、バスケットボールコート、ドッグパークなどがあります。カマカナ・アリイ・ショッピングモール、レール、ハワイ大学ウェストオアフキャンパス、ターゲット、コストコ、フードランド/フードランドファーム、クロックセンター、24時間営業のフィットネスセンターなど、便利な場所に位置しています。H-1フリーウェイへのアクセスも良好です。
※自動翻訳のため表現が適切でない場合がございます。
(原文)
CORNER LOT! You are going to love this 4 bedroom, 2.5 bath, 2 car garage plus driveway, home in the much sought after community of Lehua at Hoopili. The home is fully equipped with all stainless steel appliances, split AC system, vinyl plank flooring, solar water heater, and a storage shed. Community amenities include a pool, playgrounds, soccer park, pickleball and basketball courts and a dog park. Conveniently located in close proximity to the Kamakana Ali'i Shopping Mall, the Rail, UH West Oahu Campus, Target, Costco, Foodland/Foodland Farms, the Kroc Center, 24 Hour Fitness and much more! Easy access to the H-1 Freeway as well.


