物件詳細

ディスカバリーベイ #2014

  • 売出物件
  • 売出中

ディスカバリーベイ #2014

2

2

$679,000

物件概要

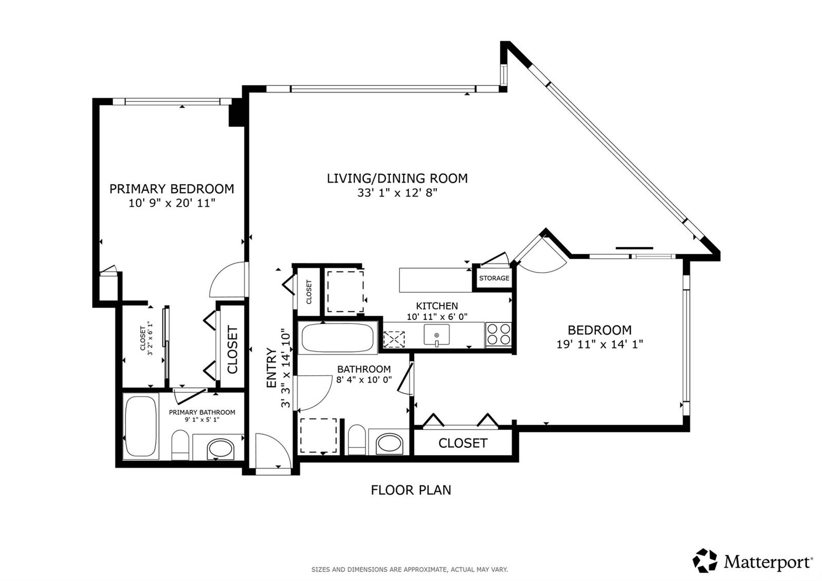
ディスカバリー ベイ 2014 へようこそ。広々とした 2 ベッドルーム、2 バスルーム、1 台分の駐車場、囲い付きベランダを含む約 1,131 平方フィートのこの物件は、ワイキキのアラ モアナ側に位置し、広々としたロケーションとメリットを提供します。この高層マンションからは、部分的な海とマリーナの眺望を楽しめます。室内は大部分がオリジナルのままで、現在もテナントが居住中です。レイアウトを見直し、仕上げを現代風にアレンジし、利便性の高いこの建物の潜在能力を最大限に引き出す、希少なバリュー アド/フィクサーの機会です。ディスカバリー ベイは、屋外プール、ジャグジー、フィットネス ルーム、バーベキュー パティオ、サンデッキ、セキュリティ エントランス、24 時間体制のセキュリティ、オンサイト管理、地上階の商業施設など、リゾート スタイルのアメニティを備えています。アラ モアナ センター、ワイキキのビーチ、サーフ ブレイク、ラグーン/マリーナ、レストラン、そしてワイキキの活気すべてへのアクセスが抜群です。このアパートメントユニットは、96.893%が単純所有権、3.107%が借地権で、リース満了前に残りのリース料持分を購入するオプション/権利を有します。リース料はリースの残存期間にわたって確定しており、残りのリース料持分の価格は購入時の評価額となります。ディスカバリー・ベイ・ハワイのウェブサイトをご覧ください。

※自動翻訳のため表現が適切でない場合がございます。

(原文)
Welcome to Discovery Bay 2014 - generously sized 2BR 2BA 1 parking ~1,131 sf including an enclosed lanai — delivers space, location, and upside on the Ala Moana end of Waikiki. This high-rise residence enjoys partial ocean & marina views. The interior is largely original and tenant-occupied, offering a rare value-add/fixer opportunity to reimagine the layout, modernize finishes, and unlock potential in a building prized for convenience. Discovery Bay provides resort-style amenities: outdoor pool, whirlpool, fitness rooms, BBQ patio, sun deck, secured entry, 24-hour security, on-site management, and commercial conveniences at street level. Unbeatable access to Ala Moana Center, Waikiki beaches, surf breaks, lagoon/marinas, dining, and all the energy of Waikiki - your chance to live, invest, or redesign in a prime Honolulu location. The apartment unit is 96.893% fee simple and 3.107% leasehold with the option/right to purchase the remaining leased fee interest prior to expiration of lease; the lease rent is known for remaining term of the lease and the price of the remaining leased fee interest will be the appraised value at time of the purchase. Visit Discovery Bay Hawaii website.

物件詳細

住所 1778 Ala Moana Boulevard #2014, Honolulu HI 96815
物件タイプ 住居 コンドミニアム・タウンハウス
ベッドルーム 2ベッド
バスルーム 2バスルーム
駐車場(台数) 1台
築年 1977年(築48年)
室内面積 1,131.0sqft(約105㎡) ラナイ面積
建物面積 敷地面積 84,463.0sqft(約7,847㎡)
管理費 $1,549 月額の固定資産税 $222
共有設備 デッキ、ホットタブスパ、ジェットバスタブ、パティオ、プール、サウナ、バーベキューエリア
室内設備 AC Central,Dishwasher,Disposal,Dryer,Range Hood,Range/Oven,Refrigerator,Washer
眺望 オーシャンビュー,シティビュー,マウンテンビュー
近隣学校(校区) WAIKIKI
FSおよびLH 土地所有権付
MLSナンバー 202521291

このコンドミニアムの売出物件一覧

このコンドミニアムに関連する記事

不動産会社・
エージェントにお問合せ
閉じる

おすすめのエージェント

ご希望のお問合せ先を選択してください